Quadrilocale in vendita

Grugliasco, Via Severino Doppi - Gerbido
€ 198.000
4 locali 4 locali
95 Mq 95 Mq
1 bagno 1 bagno

Quadrilocale in vendita

Grugliasco, Via Severino Doppi - Gerbido

Descrizione annuncio

- IN TRATTATIVA -

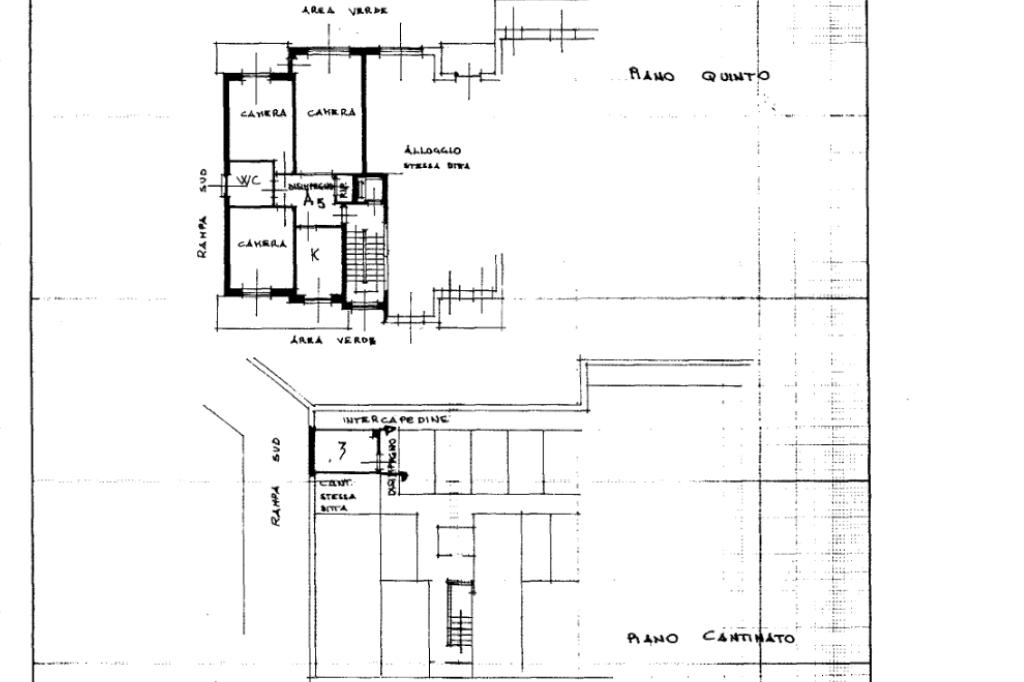
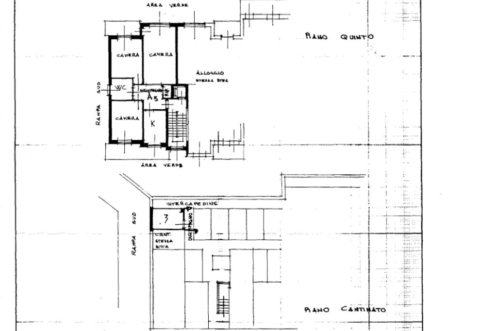
In Via Doppi, nel cuore della zona Gerbido, area residenziale tranquilla e al tempo stesso comoda ai principali servizi, proponiamo in vendita un luminoso quadrilocale situato al quinto piano di uno stabile ben tenuto, dotato di ascensore e completamente privo di barriere architettoniche. Il contesto condominiale risulta ordinato e funzionale, ideale per famiglie e per chi desidera comfort e facilità di accesso.

L’ingresso living accompagna direttamente in un’ampia sala accogliente e ben distribuita, perfetta per ospitare una zona relax e una zona pranzo. La cucina è abitabile, spaziosa e luminosa, e pensata per vivere a pieno la quotidianità.

La zona notte è composta da due camere matrimoniali di generose dimensioni, entrambe facilmente arredabili, mentre il bagno, finestrato, è completo di vasca. Un pratico ripostiglio contribuisce a rendere gli spazi ancora più funzionali.

L’alloggio si distingue per la tripla esposizione, che assicura un’eccellente luminosità naturale durante tutto il giorno, e per la presenza di due balconi che ampliano e valorizzano gli ambienti interni. Il primo, con accesso dalla sala e da una camera da letto, è ideale per godere della luce del pomeriggio, dotato di tende estate. Il secondo, dotato anch’esso di tende estate, è collegato alla cucina e alla seconda camera.

Completano la proprietà una cantina al piano interrato e al piano sesto, due sottotetti attigui entrambi dotati di lucernario. Questi spazi rappresentano un’interessante opportunità: possono essere utilizzati separatamente, uniti tra loro oppure, previa verifica delle condizioni, collegati direttamente all’appartamento, aumentando così la superficie fruibile e le potenzialità dell’immobile.

Al piano interrato, accessibile tramite ascensore, si trova un box auto acquistabile al prezzo di 13.000,00 euro.

Una soluzione abitativa completa, versatile e luminosa, ideale per chi cerca un appartamento spazioso in una zona apprezzata e ben collegata.

Mostra tutto

Nelle vicinanze

Trasporto pubblico Trasporto pubblico
Settembrini Cap.
Settembrini Cap.
1,3 Km
Settembrini C.19
Settembrini C.19
1,4 Km
Don Borio Capolinea
Don Borio Capolinea
290 m
Don Borio
Don Borio
300 m
Ricariche auto elettriche Ricariche auto elettriche
RSA Grangia - Via Ada Negri | Duferco
2,4 Km
Bluetorino Tripoli
2,5 Km
Scuole Scuole
Scuole
430 m
Istituto Tecnico Industriale "Enzo Ferrari"
470 m
Scuola elementare statale Franca Mazzarello
620 m
Istituto Majorana-Sez Tecnica
700 m
Polo scolastico del Barocchio
1,0 Km
Farmacia Farmacia
Farmacia Comunale
240 m
Farmacia
300 m
Europa
990 m
Farmacia Santi Cosma e Damiano
1,1 Km
Parafarmacia Dell'Edera
1,3 Km
Ospedali Ospedali
LARC
2,0 Km
Ospedale Martini
2,9 Km
Ospedali
2,9 Km
Ospedale Martini - Emergency
2,9 Km
Supermercati Supermercati
PrestoFresco
250 m
Supermercati
370 m
Mercatò
370 m
S.G. Perez di Marrocco L.
810 m
EuroSpin
1,1 Km
Negozi Negozi
Negozi
260 m
Backwerk
410 m
CRAI
1,0 Km
A & O
1,2 Km
Pastificio e Gastronomia F.lli Milani
1,6 Km
Bar Bar
Bar
250 m
L'officina della pasta
810 m
l'alveare bar città
900 m
Lucky Bar
1,7 Km
Cristall
1,9 Km
Ristoranti Ristoranti
Caffeteria
520 m
Pizzeria 101
530 m
Andirivieni
690 m
Cascina Duc
1,1 Km
Lentini's
1,1 Km
Mostra tutto

Caratteristiche

Rif.:
61158013
Piano:
5 di 5 con ascensore (ultimo Piano)
Box:
1
Balconi:
2
Camere da letto:
2
Arredamento:
Assente
Mostra tutto
Prezzo Prezzo
€ 198.000
Prezzo box Prezzo box
€ 13.000
Rata mutuo Rata mutuo
€ 941 / mese
Spese annue Spese annue
€ 0
Proponi il tuo prezzoProponi il tuo prezzo

Classe Energetica

F
F
F
F
F
F
F
F
F
EP globale non rinnovabile:
167.03 kW h/m² anno
EP globale rinnovabile:
0.50 kW h/m² anno
EP invernale del fabbricato:
EP estiva del fabbricato:
Anno di costruzione:
1976
Riscaldamento:
Centralizzato
Tipo impianto:
A radiatori
Tipo alimentazione:
Metano

Ti interessa visionare l'immobile?

Fissa un appuntamento  Fissa un appuntamento

Richiedi informazioni

Clicca su Leggi per aprire l'informativa
* Questi campi sono obbligatori

Calcola il tuo mutuo

Semplice e senza impegno
Anticipo

( % )
Mutuo

( % )

pochi semplici passi

inserisci i tuoi dati
Questionario completato
Grazie per aver richiesto un appuntamento senza impegno con un nostro Consulente del Credito e Assicurativo.

Hai inserito correttamente tutti i dati necessari e a breve riceverai una e-mail con un link da convalidare per inviare i tuoi dati.
Affiliato
Studio Gerbido Sas
Via Moncalieri , 47 10095 Grugliasco (TO)

Il nostro staff


  • Christian Sculli
    Affiliato

  • Valentina Natali
    Coordinatrice
Via Moncalieri , 47 10095 Grugliasco (TO)
Zona: Mirafiori Nord-Centro Europa-Gerbido-B.ta Lesna
Mostra su mappa
Orari: Dal lunedì al venerdì : 9:00 / 12:30 15:00 / 19:30 sabato: 9:00 / 12:30 15:00 / 19:00
Affiliato
Studio Gerbido Sas
Via Moncalieri , 47 10095 Grugliasco (TO)

2026 Tecnocasa Franchising S.p.A. - P. IVA 08365160152 - Via Monte Bianco 60/A 20089 Rozzano (MI). Ogni agenzia ha un proprio titolare ed è autonoma. Privacy policy | Policy utilizzo | Cookie policy